CAREGGI - 3 VANI RISTRUTTURATO CON LOGGIA - CLASSE A

Descrizione
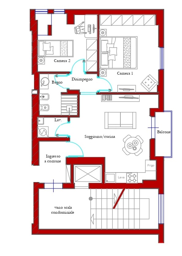
CAREGGI (VIA DELLE PANCHE) - bel contesto, piano ALTO CON ASCENSORE, TRILOCALE in fase di completa ristrutturazione con FINITURE DI ALTO LIVELLO, CLASSE ENERGETICA A. Appartamento mq 63 composto da ingresso, AMPIO SOGGIORNO CON ANGOLO COTTURA CON ACCESSO ALLA LOGGIA, RIPOSTIGLIO, due camere da letto, UNA MATRIMONIALE, una singola, LAVANDERIA e servizio. Possibilità scelta finiture. Fotovoltaico, climatizzato. Consegna dicembre 2025. Luminoso. Euro 300.000 APP. A DELLE PLANIMETRIE PUBBLICATE: MQ 63 + LOGGIA EURO 300.000 APP. B DELLE PLANIMETRIE PUBBLICATE: MQ 60 + BALCONE EURO 290.000 Per info e sopralluoghi Iacopo 3489088718 Attestato di prestazione energetica classe G, indice di consumo 175 kwh/mq annuo. LOFT & CO. Studio Immobiliare - Sede: P.zza dell'indipendenza n.21 Firenze - ufficio secondario: Via Corridoni 60/D - Altre proposte su https://www.immobiliare.it/agenzie-immobiliari/79554/loft-co-firenze/ web: https://www.lofteco.it - mail: lofteco@gmail.com - contatti: Iacopo 3489088718 - Niccolò 3401665977 - Gianni 3312299044 SOCIAL: gplus: https://plus.google.com/u/159/+LoftecoIt/posts twitter: https://twitter.com/lofteco facebook: https://www.facebook.com/LOFT-CO-studio-Immobiliare-1389007241340797/
Caratteristiche & Servizi
Posizione
Caricamento mappa...
Contattaci Ora
Il tuo agente di riferimento
Iacopo Guagni
Agente Immobiliare
Disponibile dalle 9:00 alle 19:00